Teman gw waktu itu lagi sibuk dengan pembangunan rumahnya. Rumah tua di tanah 6×17 meter..sudah dibongkar total, tapi atap masih disisakan…Rencana mau dibangun rumah baru 2 lantai tapi bertahap, lantai satu dulu. Lantai dasar ini dah hampir jadi..untuk lantai 2 nya baru dicor saja beli beton jadi entah berapa kubik. Bangunnya pakai tukang harian 5 orang dan bahan bangunan beli sendiri semuanya. Gak ada gambar disain termasuk gambar kerja. Jadi tiap 3 hari datang ke lokasi untuk bicara dengan tukang sambil ngecek kerjaannya.
Gw dateng mo dimintain pendapat aja..ini dah kelamaan kerjanya n biayanya masih masuk akal gak? Daripada nerangin lewat telfon ya gw dateng deh..kali aja ada yg bisa gw bantu.Dia sudah mulai sejak Januari dan ini sudah Juni tengah. Memang dipotong libur lebaran. tapi sekilas sih gw setuju. kelamaan waktunya dibanding apa yg sudah ada sekarang. Untuk tim kerja 5 orang..gw pikir rada lambat ya. Dah habis 200 juta dan lantai dua masih cor saja..lantai 1 sudah pasang keramik, aci dinding sudah tinggal dicat, tangga sudah jadi tapi belum dikeramik kamar mandi belum diselesaikan, plafon sudah rapi tinggal dicat, listrik dah tersambung, garasi belum ada plafon dan lantai..apalagi pagar dan jembatan ya.
Gw pikir beberapa ‘kesalahan’ ikut berkontribusi bikin lamanya konstruksi dan bahkan inefisiensi alias kemahalan. Yang paling signifikan, gambar kerja gak ada. Gw takjub kalo orang gak merasa gambar kerja itu penting. Kalo disain fasad depan dan layout ruangan, banyak orang merasa bisa bikin sendiri. Tapi yg gw lihat hasilnya disain sendiri ini..ada aja kurangnya. entah ventilasi udara gak jalan, kamar mandi kegedean, kekecilan, ada ruangan yg gak perlu, tangga kesempitan, gak nyaman naik nya dll.
Menurut gw sih kasih aja ke ahli nya deh. Ntar tukangnya bakal nanya.. listriknya gimana pak?..ya tinggal tunjuk aja, disini lampu disini stop kontak, disana saklar. saluran air gimana?..ya tanam aja disini pipa air kotor, disana pipa air bersih. Nanti kusen model apa? ukuran berapa?..lihat gambar aja. Ini tinggi lantai ke plafon berapa pak? Besi nya pake ukuran berapa…semua lihat gambar kerja. gampang kan…
Kalo tergantung tukang, ini pengalaman nyata. Rumah2 di tempat asal tukang gw sederhana aja, jadi dia pikir kalo tinggi rumah itu kurang dari 3 meter sudah biasa di daerahnya. kalo kita serahin ke beliau tinggi rumah kita..ya dibikin 3 meter kurang. Padahal nanti akan jadi terasa pendek dan sempit ruangnya. Beda banget kalo dibikin 3,20 m plafon ke lantai..kelihatan tinggi dan luas. Padahal tambahan biaya nya kan gak sebanding dengan penampakannya. Kalo tukang gw dah dibriefing, tinggi nya berapa pak? 17 hebel. artinya 17×20 cm tingginya..ato 340 cm ubin ke lantai cor..dan 320 ubin ke plafon.
Nah gambar kerja itu gunanya, kalo kita awam dalam konstruksi dan hanya bersandar ke pengalaman tukang aja. syukur kalo pengalamannya tukang kita ngerjain rumah bagus disainnya…kalo pake pengalaman rumah di kampungnya..kan jadi beda banget ya.
Satu lagi kegunaan gambar kerja. Beli material gak bakal kelebihan banyak. Lantai dan Atap misalnya. Kalau mau beli genteng berapa meter persegi, tinggal kasih aja gambar kerja bagian atap..penjualnya bisa ngitung berapa meter persegi perlunya dan kalo ada cadangan berapa ditambahkan. Kalo kurang 1-2 meter..belinya lagi susah, terutama transportnya. Kalo lebihnya banyak..katakanlah cadangan 1 meter ato 10 genteng..ternyata lebih 3 meter..mau diapain juga?
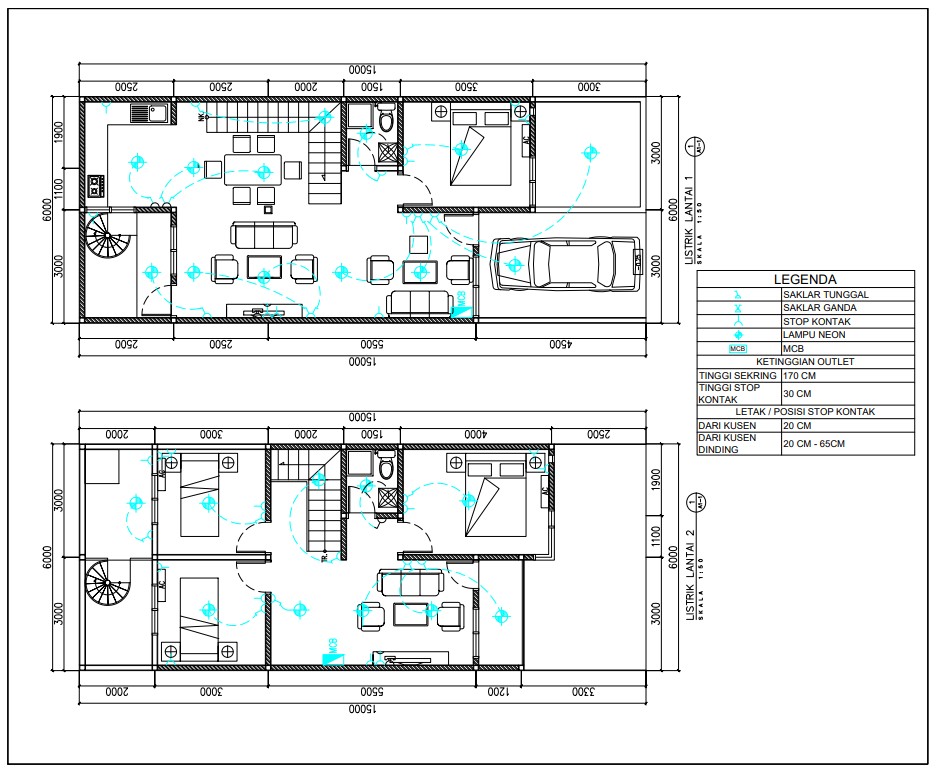
Untuk lantai kita bisa hitung manual dari gambar..kebutuhan keramik/granit berapa meter persegi. Juga keramik dinding kamar mandi. Jadi kalo lebih gak bakal lebih banyak. Sedangkan untuk jaringan listrik sudah ada gambar jaringannya..jumlah stop-kontak, saklar yang harus kita beli bisa pas. Tukang listriknya tinggal ikutin gambar aja. Kadang kita lupa kalo di teras itu perlu stop-kontak. Jadi kalo mau poles mobil, cuci pakai pompa yang tekanan tinggi..colokan listrik dah ada dekat saja. Nanti waktu mau pasang AC tambahan di ruang tamu misalnya, ato bikin kolam ikan buat pompa airnya….kita bisa tahu dari mana ambil listrik yang aman.
Gambar kerja, sangat memudahkan waktu pesan kusen pintu dan jendela. Tinggal kita kasih aja bagian gambar kerja pintu dan jendela, dah lengkap kuantitas dan dimensinya. Apalagi kalo kusen alumunium yang kita pakai, bisa langsung kita dapat penawaran harganya.
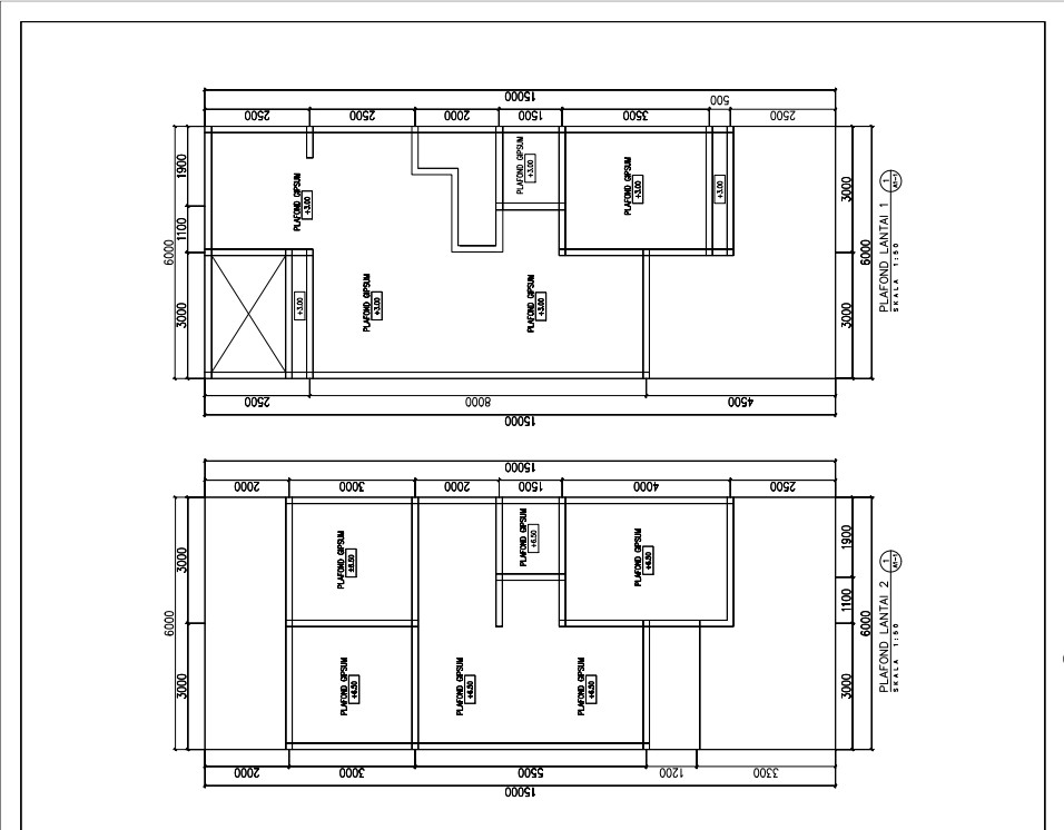
Estimasi biaya plafon. Luasan plafonnya bisa kita hitung manual, lalu dikalikan tarif per meter pemasangan. lembar gypsum yang dibutuhkan, profil plafon berapa panjang berapa biaya pasang. Semua bisa kita estimasi dan pasti gak beda jauh hasilnya dengan aktual tagihan dari tukang plafon.
Gambar kerja yang terjemahan gambar disain juga bisa efisien dalam bikin fondasi. untuk rumah 2 lantai kan hampir semua sudut akan ditanam fondasi-cakar ayam dengan jarak maksimum 4 meter antar fondasi. Kalau efisien disain ruang nya, tidak ada fondasi satu ke yang lain yang terlalu dekat. Jadi jumlah fondasi yang harus digali, jumlah cakar ayam yang harus ditanam bisa minimum.
Belum lagi kalo bicara tangga. Kalau terlalu sempit areanya, tangga bisa curam dan tidak nyaman. Kalau terlalu besar malah makan area terlalu banyak. Padahal sudah ada ukuran standar tangga yang nyaman…tinggi anak tangga 20 cm, area menapaknya 30 cm..lebar tangga minimum 90 cm. setidaknya ada 18 anak tangga plus bordes, area untuk istirahat.
Tapi biaya buat arsitek disain, bikin gambar kerja kan lumayan ya. Biayanya biasanya puluhan ribu per meter bangunan. Ada yang 20 ribu per meter ada yang lebih juga. Tapi sekarang ini terima kasih ke teknologi. Bertebaran sudah di online gambar yagn bisa kita beli termasuk gambar kerja. Lebih murah karena paket, jadi gambar kerja untuk ukuran tanah tertentu. Kita bisa pesan yang mirip ukuran tanahnya dan lay-out ruangan dengan yang kita mau.
Berita buruknya..untuk permohonan PBG ato dulu kita sebut IMB, kita harus lengkap upload gambar kerja dan tanda register arsiteknya. Jadi sekalian aja minta ke arsiteknya untuk disain fasad, layout ruangan rumah lalu minta bikin gambar kerja dan sekaligus bikin permohonan PBG atas nama kita sampai jadi. Jadi ada 3 kerjaan sekaligus. Ini perlu dibilang sampai jadi karena dalam proses permohonan PBG ini kalo ada revisi dan harus direspon, kita tenang..karena masih masuk dalam cakupan kerjaan arsitek.
Gw pakai gambar kerja yang lama, minta diedit aja sama arsiteknya. Disesuaikan dengan IRK dan alamat disesuaikan juga. Karena layout ruangan sama aja. Plus masukin permohonan PBG dan merespons revisi. Ini gw dapet dari online, jadi gak tau juga ada dimana ini arsitek, padahal dia punya tanda register arsitek, jadi memenuhi syarat buat mohon PBG. Satu PBG dia minta 3 juta an.
ini contoh beberapa gambar kerja yang pernah gw pakai sebelum bangun rumah 2 lantai .





barangkali pak minat untuk dekorasi dengan menggunakan pion beton 0895613370121
LikeLike