Kalau dulu IMB itu benar-benar izin. Artinya sebelum IMB keluar, ya kita belum boleh bangun. Kalau nekat bangun padahal IMB belum ada, ya siap-siap saja. Pilihannya biasanya dua: dihentikan, atau diperas oknum yang jumlahnya kadang gak jelas ujungnya berapa. Buat warga yang mau aman, ya biasanya urus IMB dulu, baru bangun.
Sekarang namanya PBG-Persetujuan Bangunan Gedung. Niat pemerintah baik, IMB yang selama ini jadi momok, bahan pemerasan oknum, diganti dengan Persetujuan saja…jadi bukan izin lagi. Dengan sistem baru, PBG semuanya online dan nasional di simbg.pu.go.id
Update:
simbg.jakarta.go.id – Jadi untuk warga DKI gak harus masuk ke simbg nasional. Silakan ke website yang baru. Semua syarat dan cara sama. Bedanya kita diupdate proses sampai mana pakai e-mail…
Tanah belum Sertifikat boleh urus PBG asal bangunan untuk rumah tinggal.
PBG positifnya kita boleh mulai bangun dulu sambil urus PBG. Yang penting permohonan sudah masuk ke sistem. Jadi kalau ada petugas yang datang cek ke lapangan, kita bisa tunjukkan bahwa prosesnya sedang berjalan.
Langkah pertama urus PBG sendiri sebenarnya masih sama seperti dulu. Kita tetap perlu IRK (Informasi Rencana Kota) dari kelurahan. Ini dulu namanya KRK. Dokumen yang perlu disiapkan antara lain:
- Formulir permohonan
- Fotokopi KTP
- Surat pernyataan permohonan
- Fotokopi PBB tahun terakhir
- Bukti penguasaan tanah (sertifikat atau Letter C / SKPT)
Pengalaman gw di tahap ini malah cukup menyenangkan. Masih seperti zaman Covid dulu. Gw telepon nomor kelurahan yang disebut AJIB. Ini singkatan dari Antar Jemput Izin Bermotor kalau gak salah. Petugasnya bilang: “Pak kirim saja semua syaratnya lewat WA.”. Wah gw pikir, mantap juga nih. Dua hari kemudian petugas kelurahan datang ukur lokasi. Bagusnya kita dampingi di lapangan. Setelah itu gw tanda tangan formulirnya.
Seminggu kemudian tiba-tiba dihubungi lagi oleh petugas AJIB. “Pak, IRK nya sudah jadi.” File-nya dikirim via WA juga. Kita tinggal print sendiri kalau perlu. Menurut gw sih tahapan IRK ini lancar banget. Mungkin karena masih di level kelurahan.
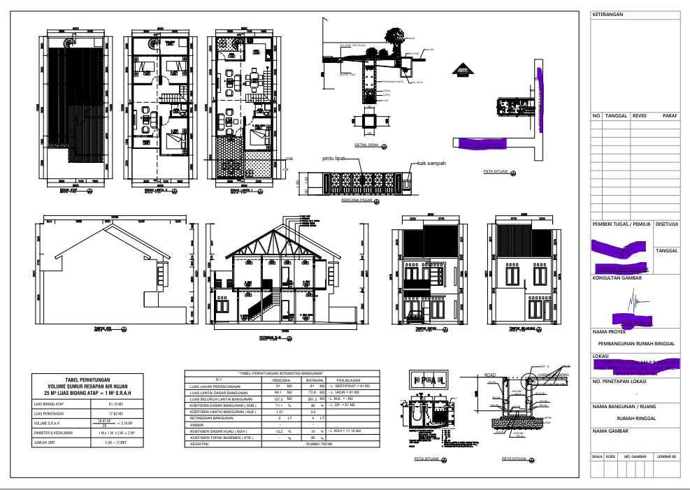
Langkah kedua, bikin Gambar kerja dan untuk diupload ke sistem. Ini kita perlu arsitek yagn punya registrasi.
Nah… mulai masuk tahap kedua ini ceritanya agak berubah. Untuk mengurus PBG, semua gambar kerja harus dibuat oleh arsitek yang punya Surat Tanda Registrasi Arsitek (STRA). Dan dokumen STRA ini juga harus diupload ke sistem.
Jadi walaupun bangunannya kecil, tetap harus ada arsitek resmi yang bertanggung jawab atas gambar tersebut. Di sini mulai muncul biaya tambahan. Arsitek yang sudah terdaftar tentu tahu ini syarat. Jadi kalau kita sudah punya gambar kerja sendiri, kita bisa saja “membeli tanda registrasi” mereka.
Untuk rumah dua lantai di tanah sekitar 90 meter, ada arsitek yang minta 2 juta rupiah hanya untuk registrasinya saja. Kalau sekalian bikin gambar kerja plus registrasi, biasanya 4–5 juta.
Maksud aturan ini sebenarnya baik: supaya gambar dibuat oleh orang yang kompeten. Tapi kalau dibandingkan dengan sistem lama waktu IMB, biayanya terasa cukup signifikan bagi masyarakat. Katanya sih pemerintah daerah menyediakan arsitek gratis, tapi gw sendiri belum pernah coba layanan itu.
Akhirnya gw dapat arsitek dari Tokopedia yang punya registrasi dan bisa bikin gambar kerja. Tarifnya 5 juta untuk dua rumah. Menurut gw ini sudah murah. Karena sebenarnya gw sudah punya gambar rumah sebelumnya. Jadi tinggal edit saja. Semua layout hampir sama, tinggal menyesuaikan dengan luasan di IRK dan mengganti alamat.
Kalau punya file DWG (file AutoCAD) proses editnya jauh lebih cepat. Kalau cuma PDF biasanya harus digambar ulang. Gambar kerja itu banyak banget. Total gambar kerja yang harus diupload sekitar 12 file. Misalnya:
- rencana air bersih
- air kotor
- listrik
- atap
- pondasi
- kolom
- balok
- potongan bangunan
- denah lantai
- struktur
- dan lain-lain
Tapi yang paling penting ternyata adalah Gambar Situasi. .

Di bagian ini gw sempat bolak-balik koreksi. Arsitek gw ternyata belum terlalu familiar dengan format Gambar Situasi yang biasa dipakai di DKI Jakarta. Dan ternyata benar… di sinilah proses PBG gw mulai tersendat-sendat. Gambar Situasi ini kayak semacam ringkasan dari seluruh gambar kerja.
Kalau semua sudah siap — gambar kerja, STRA arsitek, sertifikat tanah, IRK, KTP — barulah kita daftar dan upload semua dokumen ke SIMBG. Setelah semua file diupload…ya kita menunggu.
Yang gw heran, sistem ini tidak mengirim notifikasi ke email atau HP kalau proses verifikasi sudah selesai. Tapi kalau kita mohon nya ke simbg.jakarta.go.id ada tuh notifikasi e-mailnya.
Mulai deh tahap Verifikasi oleh petugas. Gambar kerja gw waktu diverifikasi dikoreksi banyak sekali. Catatannya panjang. Karena gw gak bisa mengedit gambar teknis, akhirnya gw kasih saja username dan password SIMBG gw ke arsiteknya supaya dia yang memperbaiki semuanya. Ini enaknya pakai arsitek yagn sudah paham PBG untuk DKI Jakarta, soalnya beda wilayah ada aja beda beda poin verifikasinya.

ini contoh hasil verifikasi. kurang enak memang verifikasi online. kita hanya baca, ngerti tidak ngerti yang harus direspon. supaya jangka waktu penyelesaiannya argo nya jalan lagi..
Di sistem sebenarnya ada tahap konsultasi juga. Katanya kalau kita minta, bisa dilakukan lewat Zoom, dan petugas menjelaskan hasil verifikasi. Tapi gw sendiri melewati tahap ini. Langsung saja upload file koreksi.
Hal lain yang agak aneh: sistem sebenarnya menuliskan berapa lama waktu verifikasi. Tapi kalau waktunya lewat, ya lewat saja. Tidak ada pemberitahuan, tidak ada penjelasan, apalagi permintaan maaf.
Saran gw sih jangan terlalu berharap ke fitur aduan di sistem. Gw pernah coba, dan tidak ada tanggapan sama sekali.
Kadang gw mikir, bikin aplikasi pemerintah itu seharusnya tanya dulu ke user. Masa kita harus cek sistem tiap hari hanya untuk tahu apakah verifikasi sudah selesai.
Keempat: bayar retribusi
Kalau verifikasi dan koreksi sudah diterima, kita masuk ke tahap berikutnya: penerbitan SKRD (Surat Ketetapan Retribusi Daerah). Ini juga sama saja…kita tidak tahu kapan suratnya keluar. Jadi ya kembali lagi: cek tiap hari. Kalau SKRD sudah muncul, kita bisa bayar lewat marketplace seperti Tokopedia menggunakan nomor registrasi yang ada di SKRD. Setelah bayar, jangan lupa upload bukti pembayaran.
Kelima: PBG keluar. Setelah itu… menunggu lagi. Sebenarnya masih hitungan hari, tapi tetap saja sistemnya tidak memberikan respon yang jelas ke pengguna. Lalu suatu hari tiba-tiba saja PBG muncul dan bisa didownload. Total perjalanan gw dari awal sampai jadi sekitar dua bulan dengan berbagai revisi gambar.
Bonus kejutan: masih ada Sertifikat Laik Fungsi.
Yang agak mengejutkan buat gw, ternyata setelah PBG keluar masih ada tahap lagi. Namanya SLF – Surat Laik Fungsi. Artinya setelah rumah selesai dibangun, kita harus mengundang petugas datang untuk memeriksa apakah bangunan sesuai dengan PBG.
Katanya proses ini gratis. Tapi jujur saja… gw tidak lanjut urus SLF. Buat gw waktu itu sederhana saja: PBG sudah keluar, ya sudah.